Oversikt
Varmegjenvinningsventilator (HRV) er en ventilasjonsanordning som brukes til å forbedre inneluftkvaliteten. Dens primære funksjon er å gjenvinne varme fra avtrekksluften under ventilasjon og overføre den til innkommende frisk luft, og dermed redusere energisvinn. Disse enhetene er vanligvis installert i en bygnings HVAC-system, og brukes i boliger, kommersielle og industrielle omgivelser.



Parametere
|
Modell |
Luftmengde (m³/t) |
Statisk trykk (Pa) |
Støy dB(A) |
Effekt (W) |
Luftutløpsstørrelse (mm) |
Filtreringsnivå |
Rensingseffektivitet |
Størrelse (mm) |
VEKT (kg) |
Valgfri bryter |
|
AXH-DJ02 |
250 |
95 |
29 |
80 |
120 |
primær |
Større enn eller lik 80 % |
820X600X285 |
25 |
LCD touch |
|
AXH-DJ03 |
350 |
105 |
30 |
100 |
120 |
primær |
Større enn eller lik 80 % |
820X600X285 |
27 |
LCD touch |
|
AXH-DJ05 |
500 |
105 |
35 |
140 |
150 |
primær |
Større enn eller lik 80 % |
950X600X285 |
29 |
LCD touch |
|
AXH-DJ08 |
800 |
110 |
40 |
180 |
150 |
primær |
Større enn eller lik 80 % |
1170×850×295 |
32 |
LCD touch |
|
AXH-DJ10 |
1000 |
115 |
42 |
240 |
150 |
primær |
Større enn eller lik 80 % |
1170×850×295 |
35 |
LCD touch |
|
AXH-DJ12 |
1200 |
120 |
45 |
360 |
200 |
primær |
Større enn eller lik 80 % |
1170×950×330 |
52 |
LCD touch |
|
AXH-DJ15 |
1500 |
150 |
48 |
500 |
200 |
primær |
Større enn eller lik 80 % |
1170×950×390 |
68 |
LCD touch |
|
AXH-DJ20 |
2000 |
220 |
49 |
500 |
250 |
primær |
Større enn eller lik 80 % |
1380×1050×390 |
75 |
LCD touch |
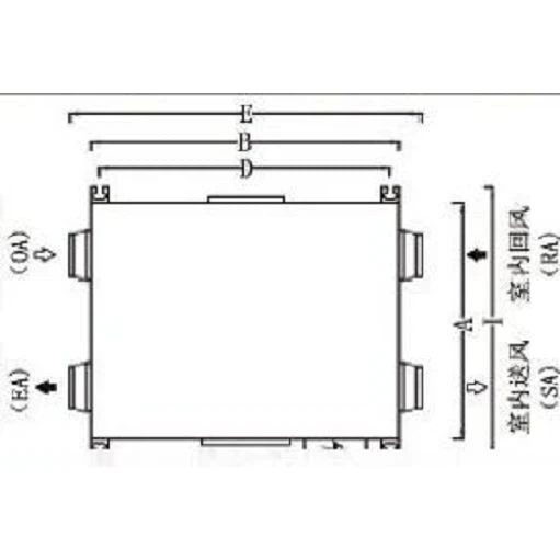
størrelse
|
Modell |
A |
B |
D |
E |
1 |
φD |
H |
|
AXH-DJ02 |
550 |
670 |
615 |
820 |
600 |
120 |
285 |
|
AXH-DJ03 |
550 |
670 |
615 |
820 |
600 |
120 |
285 |
|
AXH-DJ05 |
550 |
750 |
690 |
950 |
600 |
150 |
285 |
|
AXH-DJ08 |
800 |
970 |
910 |
1170 |
850 |
150 |
295 |
|
AXH-DJ10 |
800 |
970 |
910 |
1170 |
850 |
150 |
295 |
|
AXH-DJ12 |
900 |
970 |
915 |
1170 |
950 |
200 |
330 |
|
AXH-DJ15 |
900 |
970 |
915 |
1170 |
950 |
200 |
390 |
|
AXH-DJ20 |
1000 |
1180 |
1130 |
1380 |
1050 |
250 |
390 |
Fordeler
- Forbedret innendørs luftkvalitet: Residential varmegjenvinningsventilatorer (HRV) utveksler kontinuerlig gammel inneluft med frisk utendørsluft, og reduserer innendørs forurensninger som allergener, flyktige organiske forbindelser (VOC) og lukt. Dette bidrar til å opprettholde et sunnere innemiljø for beboerne.
- Energieffektivitet: HRV-er gjenvinner varme fra avtrekksluften før den drives ut utendørs og overfører den til innkommende frisk luft. Denne prosessen reduserer behovet for ytterligere oppvarming eller kjøling, noe som resulterer i energibesparelser og lavere strømregninger.
- Fuktighetskontroll: HRV-er kan bidra til å regulere innendørs fuktighetsnivåer ved å overføre fuktighet mellom innkommende og utgående luftstrømmer. Dette bidrar til å forhindre overflødig fuktighet, noe som kan føre til vekst av mugg og mugg, og forbedrer det generelle komfortnivået i hjemmet.
- Temperaturregulering: Ved å forvarme eller forhåndskjøle innkommende frisk luft med varmen som gjenvinnes fra eksosluften, hjelper HRV-er med å opprettholde mer konsistente innendørstemperaturer gjennom hele året, noe som forbedrer passasjerens komfort.
- Støyreduksjon: Mange HRV-er for boliger er designet med tanke på stille drift, noe som reduserer støynivået sammenlignet med tradisjonelle ventilasjonssystemer. Dette sikrer minimal forstyrrelse for beboerne samtidig som det gir effektiv ventilasjon.
- Tilpassbar kontroll: Moderne HRV-er kommer ofte med avanserte kontrollfunksjoner, som lar huseiere justere ventilasjonshastigheter, driftsplaner og andre innstillinger i henhold til deres spesifikke behov og preferanser.
- Langsiktige kostnadsbesparelser: Mens den første investeringen i en HRV kan være høyere enn konvensjonelle ventilasjonssystemer, kan energibesparelsene og forbedret inneluftkvalitet resultere i langsiktige kostnadsbesparelser og potensielle økninger i eiendomsverdi.



FAQ
Spørsmål: Kan produkter produseres i henhold til kundens krav?
Spørsmål: Er det tillatt å besøke fabrikken?
Spørsmål: Kan jeg be om tidlig forsendelse?
Spørsmål: Er det noen spesielle krav for OEM-kjøp?
Spørsmål: Hvis jeg vil ha et produkt laget med spesielle materialer, kan du gjøre det?
Spørsmål: Kan jeg besøke fabrikken din?
Populære tags: boligvarmegjenvinningsventilator, produsenter, leverandører, fabrikk for boligvarmegjenvinningsventilatorer




